Open bebouwing met Tuin in Temse
Boonakker 29, 9140 Temse—Ref. 1439059
Te koop: ruime open bebouwing in Temse, rustig gelegen en toch nabij openbaar vervoer.
Deze woning uit 1995 combineert een moderne afwerking met praktische troeven zoals drie parkeerplaatsen, een grote garage en een doordachte indeling. De ligging in een rustige omgeving biedt veel privacy, terwijl winkels en openbaar vervoer vlot bereikbaar zijn. Binnen geniet u van een lichtrijke leefruimte, een volledig ingerichte keuken en een comfortabele badkamer.
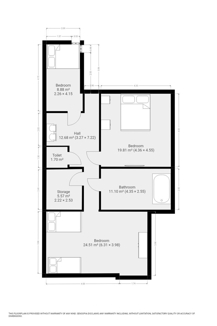
Belangrijkste ruimtes:
• Living (44 m²) met veel lichtinval
• Volledig ingebouwde keuken (19 m²) met ingemaakte kasten
• Badkamer (11,1 m²) met inloopdouche, ligbad en dubbele wastafel
• 3 slaapkamers (9 m², 20 m² en 25 m²)
• Dressing (6 m²)
• Garage (31 m²) met automatische poort
• Bergingen (2 m² en 8 m²) met aansluitingen voor wasmachine en droogkast
• 2 aparte toiletten
Troeven:
• 3 parkeerplaatsen, inclusief ruime garage
• Moderne afwerking en goed onderhouden
• Rustige ligging nabij openbaar vervoer
Neem vandaag nog contact op voor een bezoek.
JOUW DROOMHUIS. ZO GEVONDEN!
| Vastgoed ID | 1439059 |
|---|---|
| Vraagprijs | € 560.000 |
| Woningtype | Villa |
| Woonopp. | 200 m² |
| Terrasopp. | - |
| Perceelopp. | 575 m² |
| Bouwjaar | 1995 |
| Renovatiejaar | - |
| Slaapkamers | 3 |
| Badkamers | 1 |
| Garages | 1 |
| Douchekamers | - |
| Kadastraal Inkomen | € 1.318 |
|---|---|
| EPC | 233 kWh/m² |
| Unieke code | 20211026-0002484081-RES-1 |
| Overstromingsgebied | Niet gelegen in gevoelig gebied |
| Stedenbouwkundige vergunning | - |
| Verkavelingsvergunning | Nee |
| Stedenbouwkundige bestemming | Woongebied |
| Voorkooprecht | Nee |
| Dagvaarding | - |
| Rechterlijke beslissing | - |
ERA Wonen Gentse Baan 45A, 9100 Sint-Niklaas
- Telefoon:+32.3.296.37.69
- Email:wonen@era.be
- Website:www.era.be/nl/era-wonen
- Maandag - VrijdagOpen van 09.00 - 12.00 – 13.00 - 18.00
- Zaterdag Enkel op afspraak
- Zondag Gesloten
Makelaar




























