Unieke en volledig ecologische gerenoveerde woning te huur
Grote Vijverselenweg 4, 1750 Lennik—Ref. 1398250
Deze unieke en volledig gerenoveerde schuurwoning is afgewerkt met kwalitatieve en hoogwaardige materialen.
Ecologisch gebouwd volgens nieuwste normen met duurzame en natuurlijke materialen met 15 zonnepanelen.
Deze woning heeft een praktische inrichting met inbouwkasten, veel lichtinval en geweldig uitzicht op de groene vallei dankzij de grote raampartijen.
Ze beschikt over aluminium ramen met dubbele beglazing en centrale verwarming door lucht/water warmtepomp met vloerverwarming.
Bijzonderheden:
• Gelijkvloerse kamer/studio met afzonderlijke ingang, kitchenette, badkamer en toilet.
• 4 slaapkamers - 3 badkamers
• Ruime terrassen zowel zuid-gericht als overdekt
Zeer rustige ligging in een natuurlijke omgeving met prachtige verzichten, vlakbij het centrum van Lennik.
Indeling:
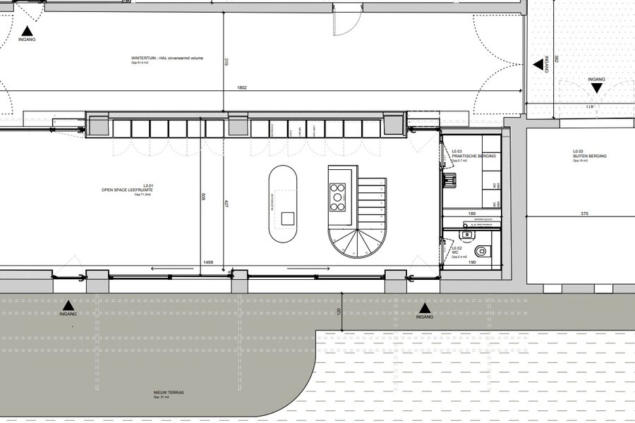
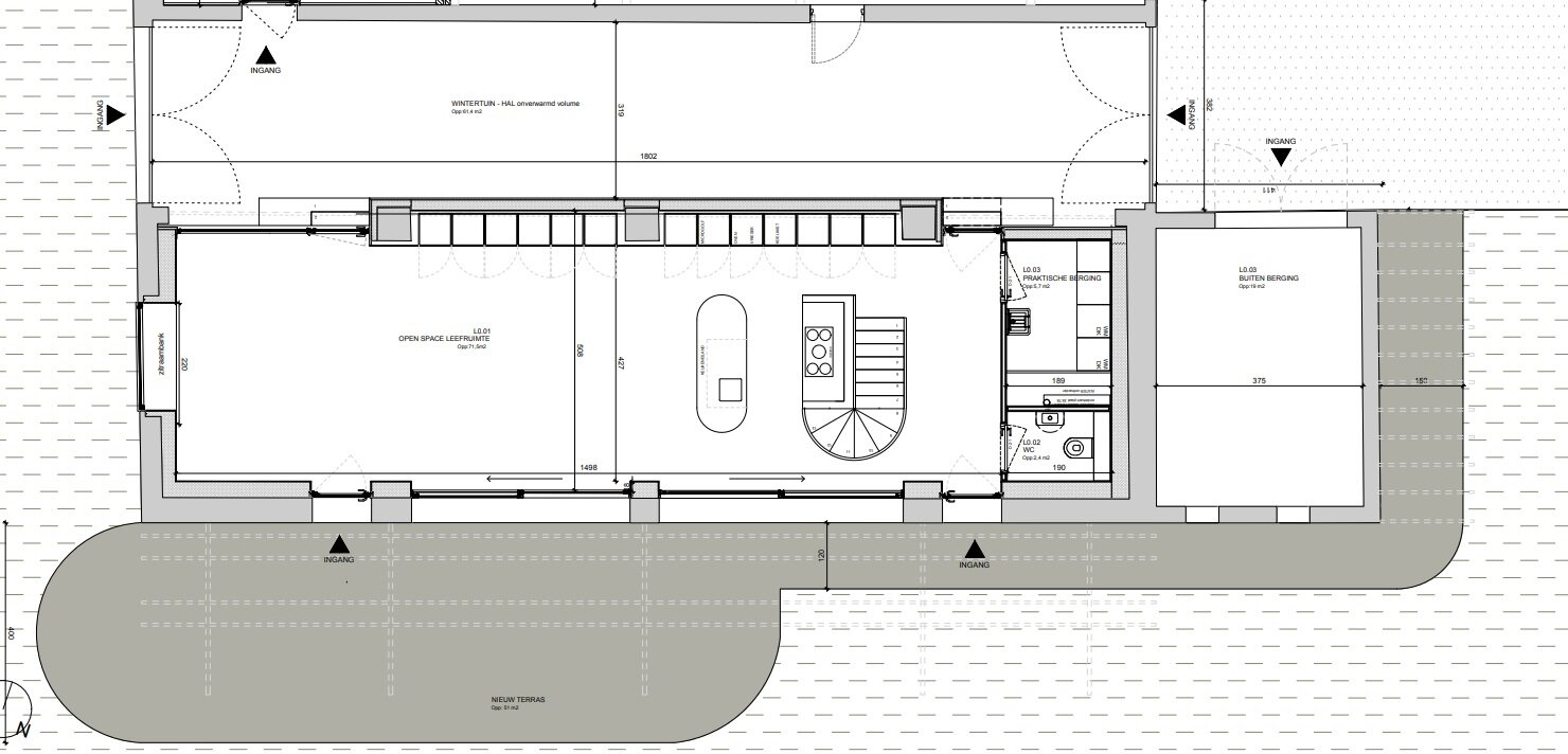
Gelijkvloers: Buitenberging, imposante wintertuin, inkomhal met unieke trap, technisch lokaal/berging, apart toilet, zeer ruime living met veel lichtinval en prachtige open keuken. Aanpalend een studio met kitchenette , toilet en douche.
Zuidterras dat aansluit op de leefruimtes. Noord overdekte oprit mogelijkheid tot parkeren van 2 auto’s.
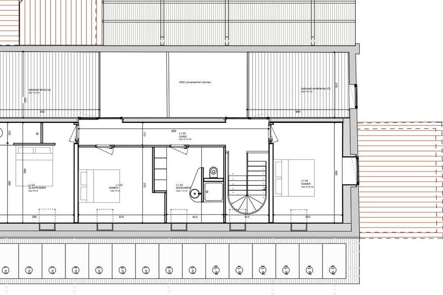
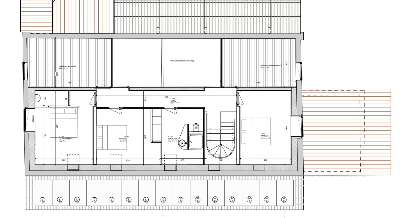
Verdieping: nachthal, 3 ruime slaapkamers waarvan 1 met douche, badkamer met inloopdouche en toilet en 2 overdekte terrassen
EPC in aanvraag nieuwbouw
Provisie op het privatief verbruik van elektriciteit: €250/maand
Beschikbaar vanaf 1 oktober 2025!
Ecologisch gebouwd volgens nieuwste normen met duurzame en natuurlijke materialen met 15 zonnepanelen.
Deze woning heeft een praktische inrichting met inbouwkasten, veel lichtinval en geweldig uitzicht op de groene vallei dankzij de grote raampartijen.
Ze beschikt over aluminium ramen met dubbele beglazing en centrale verwarming door lucht/water warmtepomp met vloerverwarming.
Bijzonderheden:
• Gelijkvloerse kamer/studio met afzonderlijke ingang, kitchenette, badkamer en toilet.
• 4 slaapkamers - 3 badkamers
• Ruime terrassen zowel zuid-gericht als overdekt
Zeer rustige ligging in een natuurlijke omgeving met prachtige verzichten, vlakbij het centrum van Lennik.
Indeling:
Gelijkvloers: Buitenberging, imposante wintertuin, inkomhal met unieke trap, technisch lokaal/berging, apart toilet, zeer ruime living met veel lichtinval en prachtige open keuken. Aanpalend een studio met kitchenette , toilet en douche.
Zuidterras dat aansluit op de leefruimtes. Noord overdekte oprit mogelijkheid tot parkeren van 2 auto’s.
Verdieping: nachthal, 3 ruime slaapkamers waarvan 1 met douche, badkamer met inloopdouche en toilet en 2 overdekte terrassen
EPC in aanvraag nieuwbouw
Provisie op het privatief verbruik van elektriciteit: €250/maand
Beschikbaar vanaf 1 oktober 2025!
| Vastgoed ID | 1398250 |
|---|---|
| Vraagprijs | € 2.700 |
| Woningtype | Villa |
| Woonopp. | 293 m² |
| Terrasopp. | - |
| Perceelopp. | 1.600 m² |
| Bouwjaar | - |
| Renovatiejaar | - |
| Slaapkamers | 4 |
| Badkamers | 1 |
| Garages | - |
| Douchekamers | - |
| Kadastraal Inkomen | - |
|---|---|
| EPC | - |
| Unieke code | - |
| Overstromingsgebied | Niet gelegen in gevoelig gebied |
| Stedenbouwkundige vergunning | Nee |
| Verkavelingsvergunning | Nee |
| Stedenbouwkundige bestemming | - |
| Voorkooprecht | Nee |
| Dagvaarding | - |
| Rechterlijke beslissing | - |
ERA Innova Alsembergsesteenweg 570, 1653 Beersel
- Telefoon:+ 32.2.523.55.52
- Email:innova@era.be
- Website:www.era.be/nl/era-innova
Makelaar



























