MODERNE NIEUWBOUWWONING
Mosthoevendreef 5 bus A, 2970 Schilde —Ref. 7046966
Moderne woning in harmonie met groen en comfort
In dit unieke woonproject is bewust gekozen voor een moderne architectuur met een strakke, hedendaagse uitstraling. Tegelijk zorgen zachte elementen en een doordachte inplanting in het groen voor een warme, natuurlijke sfeer. Zo ontstaat een perfect evenwicht tussen eigentijds wonen en omgevingskwaliteit.
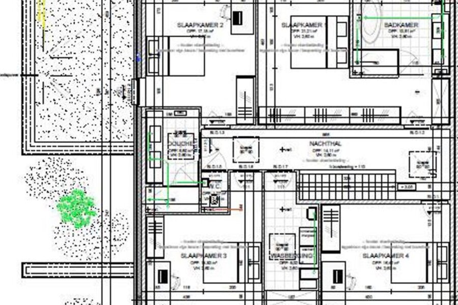
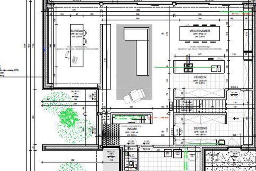
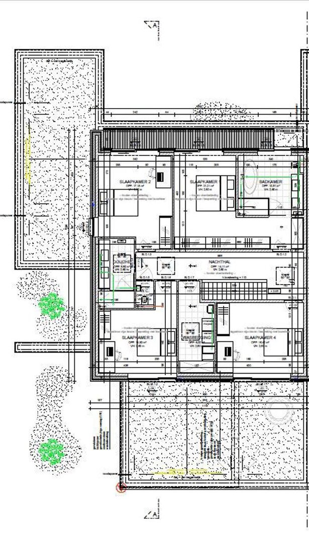
De woning bevind zich op een ruim perceel met alle comfort die u zich kan wensen. Op het gelijkvloers vindt u een inkomhal, een leefruimte met geïntegreerde eetruimte en open keuken, een bureauruimte, een berging, een gastentoilet en een royale garage. Op de eerste verdieping bevinden zich maar liefst vier slaapkamers, twee badkamers, een extra berging en een afzonderlijk toilet.
Bij de ontwikkeling van dit project is veel aandacht gegaan naar energiezuinigheid en comfort. Dankzij doorgedreven isolatie, zonnepanelen en een geavanceerde warmtepomp met vloerverwarming én -koeling, behalen deze woningen een uitzonderlijk laag E-peil (onder E10). Dit garandeert niet alleen lage energiekosten, maar ook een aangenaam en stil binnenklimaat.
De woning wordt afgewerkt in nauw overleg met de koper. Via persoonlijke klantenbegeleiding door de projectcoördinator kiest u zelf de afwerkingsmaterialen en details, volledig afgestemd op uw smaak en levensstijl. Zo creëren we samen uw droomwoning – tot in de kleinste details op maat uitgewerkt.
Een nieuw thuis, op uw ritme en volgens uw wensen – modern, duurzaam en omgeven door groen.
Grondaandeel: € 465.000,- + (12% RR, € 55.800,-) = € 520.800,-
Constructie: € 695.000,- + (21% btw, € 145.950,-) = € 840.950,-
PRIJS: € 1.160.000 + 55.800 RR + 145.950 BTW 21% = € 1.361.750,-
In dit unieke woonproject is bewust gekozen voor een moderne architectuur met een strakke, hedendaagse uitstraling. Tegelijk zorgen zachte elementen en een doordachte inplanting in het groen voor een warme, natuurlijke sfeer. Zo ontstaat een perfect evenwicht tussen eigentijds wonen en omgevingskwaliteit.
De woning bevind zich op een ruim perceel met alle comfort die u zich kan wensen. Op het gelijkvloers vindt u een inkomhal, een leefruimte met geïntegreerde eetruimte en open keuken, een bureauruimte, een berging, een gastentoilet en een royale garage. Op de eerste verdieping bevinden zich maar liefst vier slaapkamers, twee badkamers, een extra berging en een afzonderlijk toilet.
Bij de ontwikkeling van dit project is veel aandacht gegaan naar energiezuinigheid en comfort. Dankzij doorgedreven isolatie, zonnepanelen en een geavanceerde warmtepomp met vloerverwarming én -koeling, behalen deze woningen een uitzonderlijk laag E-peil (onder E10). Dit garandeert niet alleen lage energiekosten, maar ook een aangenaam en stil binnenklimaat.
De woning wordt afgewerkt in nauw overleg met de koper. Via persoonlijke klantenbegeleiding door de projectcoördinator kiest u zelf de afwerkingsmaterialen en details, volledig afgestemd op uw smaak en levensstijl. Zo creëren we samen uw droomwoning – tot in de kleinste details op maat uitgewerkt.
Een nieuw thuis, op uw ritme en volgens uw wensen – modern, duurzaam en omgeven door groen.
Grondaandeel: € 465.000,- + (12% RR, € 55.800,-) = € 520.800,-
Constructie: € 695.000,- + (21% btw, € 145.950,-) = € 840.950,-
PRIJS: € 1.160.000 + 55.800 RR + 145.950 BTW 21% = € 1.361.750,-
| Vastgoed ID | 7046966 |
|---|---|
| Vraagprijs | € 1.160.000 |
| Woningtype | Villa |
| Woonopp. | 318 m² |
| Terrasopp. | 60 m² |
| Perceelopp. | 2.115 m² |
| Bouwjaar | 2025 |
| Renovatiejaar | - |
| Slaapkamers | 4 |
| Badkamers | 2 |
| Garages | 1 |
| Douchekamers | - |
| Kadastraal Inkomen | - |
|---|---|
| EPC | - |
| Unieke code | - |
| Overstromingsgebied | Niet gelegen in gevoelig gebied |
| Stedenbouwkundige vergunning | Ja |
| Verkavelingsvergunning | Ja |
| Stedenbouwkundige bestemming | Woonpark |
| Voorkooprecht | Nee |
| Dagvaarding | Nee |
| Rechterlijke beslissing | - |
Immo Point Schilde Turnhoutsebaan 75, 2970 Schilde
- Telefoon:+32.3.383.50.60
- Email:schilde@immopoint.be
- Website:www.immopoint.be
- Maandag - VrijdagOpen van 09.00 - 18.00
- Zaterdag Open van 10.00 - 17.00
- Zondag Gesloten


















