Volledig gerenoveerd - 4 slaapkamers - verwarmd zwembad
Natiënlaan 229, 8300 Knokke-Heist—Ref. 6808159
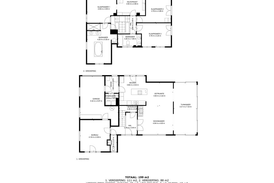
We stellen u graag deze uitzonderlijke woning voor, discreet gelegen aan de Natiënlaan 229 in Knokke. In tegenstelling tot de meeste panden langs deze verbindingsweg, bevindt deze villa zich iets achterin, waardoor u geniet van een aangename rust en volledige privacy, zonder hinder van doorgaand verkeer. Deze volledig gerenoveerde luxewoning combineert stijl, comfort en functionaliteit op een uitmuntende locatie aan de Belgische kust. De ruime en lichtrijke woonkamer vormt het hart van de woning en sluit naadloos aan op een volledig ingerichte Amerikaanse keuken, uitgerust met hoogwaardige toestellen en een professionele teppanyakki-plaat – een echte troef voor wie van koken houdt. Een afzonderlijk bureau biedt ruimte voor thuiswerk of kan perfect dienstdoen als vierde slaapkamer. Op de eerste verdieping bevinden zich drie volwaardige slaapkamers, een dressing en twee moderne badkamers die beantwoorden aan alle hedendaagse verwachtingen. De woning werd volledig gerenoveerd met oog voor detail en duurzame materialen. Het dak werd recent geïsoleerd en vernieuwd en er werden zonnepanelen geplaatst met batterij. Een recente gasketel en de aanwezigheid van een warmtepomp zorgen voor een efficiënte en energiezuinige verwarming. EPC: B. Buiten treft u een oostgericht terras aan waar het heerlijk vertoeven is in de ochtendzon, en een zuidelijk georiënteerd, verwarmd zwembad dat recent werd uitgerust met een nieuwe elektrische rolluik. De mooi onderhouden tuin beschikt bovendien over twee praktische tuinhuizen. Voor uw wagens is er zowel een inpandige garage als een carport voorzien. Deze instapklare woning biedt het beste van twee werelden: rust en discretie, vlak bij het levendige centrum van Knokke (10min met de fiets). Een unieke opportuniteit voor wie op zoek is naar kwaliteit en comfort op een toplocatie.
| Vastgoed ID | 6808159 |
|---|---|
| Vraagprijs | € 1.950.000 |
| Woningtype | Villa |
| Woonopp. | 228 m² |
| Terrasopp. | 20 m² |
| Perceelopp. | 648 m² |
| Bouwjaar | 1962 |
| Renovatiejaar | 2024 |
| Slaapkamers | 4 |
| Badkamers | 2 |
| Garages | 1 |
| Douchekamers | 2 |
| Kadastraal Inkomen | - |
|---|---|
| EPC | 151 kWh/m² |
| Unieke code | 0003553269 |
| Overstromingsgebied | Niet gelegen in gevoelig gebied |
| Stedenbouwkundige vergunning | Ja |
| Verkavelingsvergunning | Ja |
| Stedenbouwkundige bestemming | Andere |
| Voorkooprecht | Nee |
| Dagvaarding | Nee |
| Rechterlijke beslissing | - |
So Estates Brussel Joseph Stevensstraat 10, 1000 Brussel
- Telefoon:+32.2.512.20.22
- Email:info@so-estates.be
- Website:www.so-estates.be
Makelaar


























