HAM - Langgevelhoeve met stallen en piste
Graafstraat 19, 3945 Ham—Ref. 7183084
TESSENDERLO - HAM - Heel centraal gelegen, doch in een rustige omgeving.
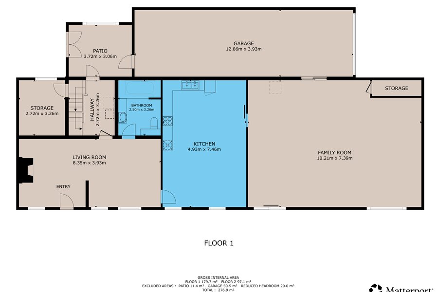
Deze langgevelhoeve (25mx8m) werd deels zeer grondig en degelijk gerenoveerd. Voornamelijk op de eerste verdieping waar een mooie badkamer, een ruime dressing met aansluitend ene grote slaapkamer. Daarachter bevinden zich nog ruimtes in te richten als slaapkamer.
Op het gelijkvloers werd alles gestript en hoewel bewoonbaar dient ze nog ingericht te worden.
De opties hier zijn daardoor zeer uitgebreid naar smaak en inrichting, maar ook naar indeling toe. Want deze zeer ruime langgevelhoeve leent zich ideaal als kangoeroewoning, of voor een groot bureel wil inrichten aan de voorzijde van de woning.
Aan de rechterzijde van de hoeve is tevens een ruime en diepe garage van 44m² met opbergruimte.
Buiten is de aanleg ook zeer netjes gedaan met een mooie oprit naar een zonnige tuin en terras.
Het eiken stalgebouw grenzend aan de tuin is zeer kwalitatief en omvat een opslagruimte -en zadelkamer en 3 luchtige stallen. Aanpalend is er nog een buitenpiste met verlichting met daarachter een kleine weide/paddock.
In de directe omgeving en op wandelafstand van deze hoeve worden er momenteel 2 grote weilanden gehuurd met schuilstal van 1ha5 en 2ha5 dewelke mogelijks kunnen overgenomen worden. Ook kan de weide aan de overzijde (1ha2) gehuurd worden.
Deze hoeve is ideaal voor wie zijn eigen hand nog wil leggen aan de inrichting en/of op zoek is naar extra ruimte voor groot gezin of bureel. Interesse? Contacteer ons vandaag nog op 053/60.65.66.
Deze langgevelhoeve (25mx8m) werd deels zeer grondig en degelijk gerenoveerd. Voornamelijk op de eerste verdieping waar een mooie badkamer, een ruime dressing met aansluitend ene grote slaapkamer. Daarachter bevinden zich nog ruimtes in te richten als slaapkamer.
Op het gelijkvloers werd alles gestript en hoewel bewoonbaar dient ze nog ingericht te worden.
De opties hier zijn daardoor zeer uitgebreid naar smaak en inrichting, maar ook naar indeling toe. Want deze zeer ruime langgevelhoeve leent zich ideaal als kangoeroewoning, of voor een groot bureel wil inrichten aan de voorzijde van de woning.
Aan de rechterzijde van de hoeve is tevens een ruime en diepe garage van 44m² met opbergruimte.
Buiten is de aanleg ook zeer netjes gedaan met een mooie oprit naar een zonnige tuin en terras.
Het eiken stalgebouw grenzend aan de tuin is zeer kwalitatief en omvat een opslagruimte -en zadelkamer en 3 luchtige stallen. Aanpalend is er nog een buitenpiste met verlichting met daarachter een kleine weide/paddock.
In de directe omgeving en op wandelafstand van deze hoeve worden er momenteel 2 grote weilanden gehuurd met schuilstal van 1ha5 en 2ha5 dewelke mogelijks kunnen overgenomen worden. Ook kan de weide aan de overzijde (1ha2) gehuurd worden.
Deze hoeve is ideaal voor wie zijn eigen hand nog wil leggen aan de inrichting en/of op zoek is naar extra ruimte voor groot gezin of bureel. Interesse? Contacteer ons vandaag nog op 053/60.65.66.
| Vastgoed ID | 7183084 |
|---|---|
| Vraagprijs | € 595.000 |
| Woningtype | Villa |
| Woonopp. | 315 m² |
| Terrasopp. | 20 m² |
| Perceelopp. | 2.709 m² |
| Bouwjaar | 1899 |
| Renovatiejaar | 2020 |
| Slaapkamers | 3 |
| Badkamers | 1 |
| Garages | 1 |
| Douchekamers | 2 |
| Kadastraal Inkomen | € 736 |
|---|---|
| EPC | 323 kWh/m² |
| Unieke code | 20250928-000369393-RES-1 |
| Overstromingsgebied | Niet gelegen in gevoelig gebied |
| Stedenbouwkundige vergunning | Nee |
| Verkavelingsvergunning | Nee |
| Stedenbouwkundige bestemming | Woongebied |
| Voorkooprecht | Nee |
| Dagvaarding | Nee |
| Rechterlijke beslissing | - |
Horse Immo Hoogstraat 20, 9340 Lede
- Telefoon:+32.53.60.65.66
- Email:info@horse-immo.be
- Website:www.horse-immo.be





































