Exclusieve woning met 270 m² comfort op perceel van 998 m²
Canadezenstraat 158, 8380 Brugge Lissewege—Ref. 6737
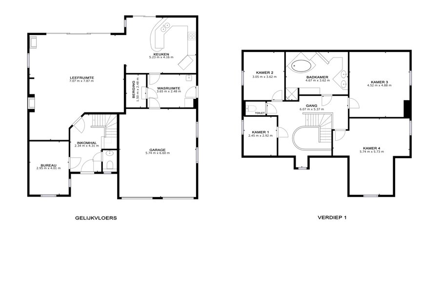
Op een bereikbare en residentiële omgeving te Lissewege bevindt zich deze uitzonderlijk ruime en perfect onderhouden open bebouwing (1997) met een bewoonbare oppervlakte van 270 m² op een prachtig perceel van 998 m². Deze woning combineert volume, comfort en privacy met een warme en tijdloze uitstraling.
Via de ruime inkomhal met afzonderlijk gastentoilet komt u in de lichtrijke leefruimte met gezellige open haard en een mooi zicht op de tuin met overdekt zwembad, waar u het hele jaar door in alle rust kan genieten. Aansluitend vindt u een ruime, volledig geïnstalleerde keuken met bijkeuken, een koele berging en een dubbele inpandige garage. Verder is er nog een afzonderlijk bureel/slaapkamer. Een mooie brede trap leidt naar de eerste verdieping met vier volwaardige slaapkamers en een ruime badkamer met douche, ligbad en dubbele wastafel. De woning beschikt bovendien over zonnepanelen en behaalt een gunstig EPC-label B, wat bijdraagt aan energiezuinig en toekomstgericht wonen.
Extra bergruimte op zolder (via trapluik) of in de tuinberging (40 m²).
Een ideale gezinswoning voor wie ruim, comfortabel en kwalitatief wil wonen op een topligging nabij Brugge en de kust.
Interesse?
Via de ruime inkomhal met afzonderlijk gastentoilet komt u in de lichtrijke leefruimte met gezellige open haard en een mooi zicht op de tuin met overdekt zwembad, waar u het hele jaar door in alle rust kan genieten. Aansluitend vindt u een ruime, volledig geïnstalleerde keuken met bijkeuken, een koele berging en een dubbele inpandige garage. Verder is er nog een afzonderlijk bureel/slaapkamer. Een mooie brede trap leidt naar de eerste verdieping met vier volwaardige slaapkamers en een ruime badkamer met douche, ligbad en dubbele wastafel. De woning beschikt bovendien over zonnepanelen en behaalt een gunstig EPC-label B, wat bijdraagt aan energiezuinig en toekomstgericht wonen.
Extra bergruimte op zolder (via trapluik) of in de tuinberging (40 m²).
Een ideale gezinswoning voor wie ruim, comfortabel en kwalitatief wil wonen op een topligging nabij Brugge en de kust.
Interesse?
| Vastgoed ID | 6737 |
|---|---|
| Vraagprijs | € 748.800 |
| Woningtype | Villa |
| Woonopp. | 270 m² |
| Terrasopp. | 30 m² |
| Perceelopp. | 998 m² |
| Bouwjaar | 1997 |
| Renovatiejaar | - |
| Slaapkamers | 5 |
| Badkamers | 1 |
| Garages | 2 |
| Douchekamers | - |
| Kadastraal Inkomen | € 1.224 |
|---|---|
| EPC | 152 kWh/m² |
| Unieke code | 20221127-0002737539-RES-1 |
| Overstromingsgebied | Niet gelegen in gevoelig gebied |
| Stedenbouwkundige vergunning | Ja |
| Verkavelingsvergunning | Nee |
| Stedenbouwkundige bestemming | Woongebied |
| Voorkooprecht | Nee |
| Dagvaarding | Nee |
| Rechterlijke beslissing | Nee |
Altro Brugge Koning Albert I-laan 207, 8200 Brugge
- Telefoon:+32.50.22.33.44
- Email:info@altro-vastgoed.be
- Website:www.altro-vastgoed.be































