Te renoveren villa op ca 4.000m² in Koningshof
Nachtegalenlei 30, 2900 Schoten—Ref. 23696
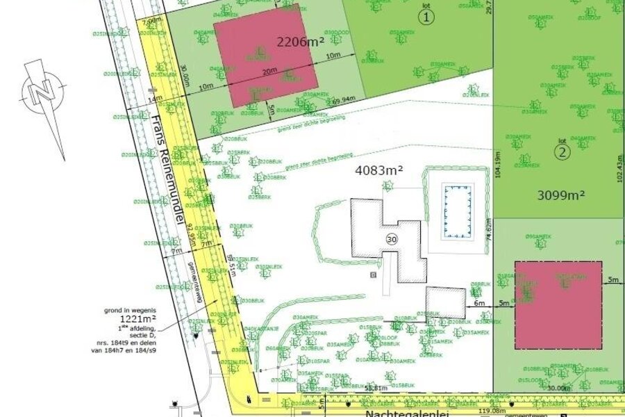
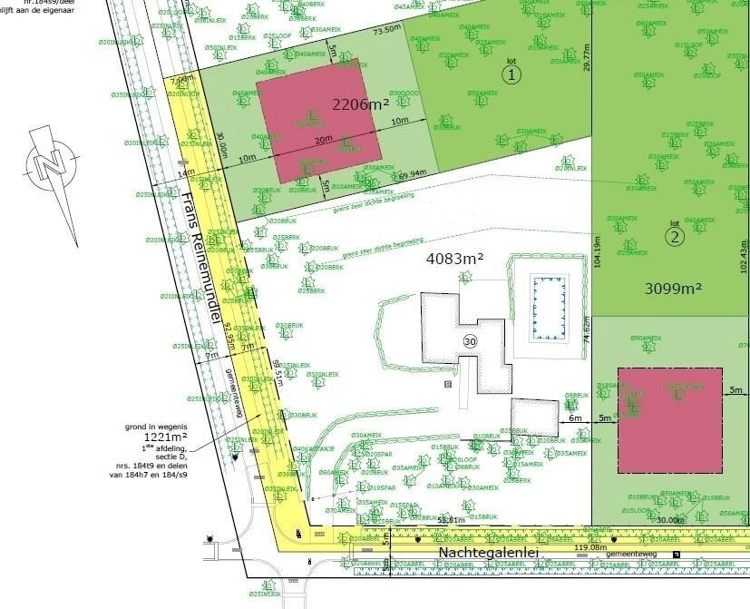
Te renoveren villa op groot groen perceel van ca 4.000m²
Gelegen in villawijk Schotenhof in een zeer groene en rustige omgeving.
Op wandelafstand van scholen, handelszaken en openbaar vervoer.
*Gegeerde locatie
*Zonnige tuin met zuidwest oriëntatie
*Omringd door groen
*Ruime garage
Inkomhal met gastentoilet en vestiaire. Ruime inpandige garage van ca. 39 m² voor 2 wagens met sectionaalpoort, voorzien van kichenette en toilet.
Keuken met ontbijthoek en berging, eetkamer en living van ca. 45 m². 2 slaapkamers (ca. 17,5 m² en 8 m²) en badkamer.
Op de eerste verdieping bevindt zich een nachthal met ingemaakte kasten, linnenkast en toegang tot een terras. 2 slaapkamers (ca. 20 m² en 17,5 m²) en badkamer. Verder is er ook een speelkamer (ca. 25 m²), een bureau (ca. 9 m²) en een hobbyruimte (ca. 61 m²).
Vrijstaande garage van ca. 62 m². Zwembad.
Renovatieprogramma mogelijk met Sels Woningbouw, op maat aan te vragen.
Energetische renovatie verplicht binnen 5 jaar na aankoop.
Wil jij graag op deze leuke locatie wonen?
Aarzel niet en contacteer ons: sofie@sinjoor.be of 03/646.66.55
Residentieel:
Dit pand is onderworpen aan de renovatieverplichting van de Vlaamse overheid voor residentiële gebouwen (behoudens bij sloop binnen 5 jaar na de aankoop). Consulteer voor meer informatie de website van het Vlaams Energie- en Klimaatagentschap via https://www.vlaanderen.be/een-huis-of-appartement-kopen/renovatieverplichting-voor-residentiele-gebouwen
Gelegen in villawijk Schotenhof in een zeer groene en rustige omgeving.
Op wandelafstand van scholen, handelszaken en openbaar vervoer.
*Gegeerde locatie
*Zonnige tuin met zuidwest oriëntatie
*Omringd door groen
*Ruime garage
Inkomhal met gastentoilet en vestiaire. Ruime inpandige garage van ca. 39 m² voor 2 wagens met sectionaalpoort, voorzien van kichenette en toilet.
Keuken met ontbijthoek en berging, eetkamer en living van ca. 45 m². 2 slaapkamers (ca. 17,5 m² en 8 m²) en badkamer.
Op de eerste verdieping bevindt zich een nachthal met ingemaakte kasten, linnenkast en toegang tot een terras. 2 slaapkamers (ca. 20 m² en 17,5 m²) en badkamer. Verder is er ook een speelkamer (ca. 25 m²), een bureau (ca. 9 m²) en een hobbyruimte (ca. 61 m²).
Vrijstaande garage van ca. 62 m². Zwembad.
Renovatieprogramma mogelijk met Sels Woningbouw, op maat aan te vragen.
Energetische renovatie verplicht binnen 5 jaar na aankoop.
Wil jij graag op deze leuke locatie wonen?
Aarzel niet en contacteer ons: sofie@sinjoor.be of 03/646.66.55
Residentieel:
Dit pand is onderworpen aan de renovatieverplichting van de Vlaamse overheid voor residentiële gebouwen (behoudens bij sloop binnen 5 jaar na de aankoop). Consulteer voor meer informatie de website van het Vlaams Energie- en Klimaatagentschap via https://www.vlaanderen.be/een-huis-of-appartement-kopen/renovatieverplichting-voor-residentiele-gebouwen
| Vastgoed ID | 23696 |
|---|---|
| Vraagprijs | € 1.035.000 |
| Woningtype | Villa |
| Woonopp. | 342 m² |
| Terrasopp. | - |
| Perceelopp. | 4.083 m² |
| Bouwjaar | 1968 |
| Renovatiejaar | - |
| Slaapkamers | 4 |
| Badkamers | 2 |
| Garages | 2 |
| Douchekamers | - |
| Kadastraal Inkomen | € 4.144 |
|---|---|
| EPC | 1.140 kWh/m² |
| Unieke code | Certificaat-20230112-0002778448-RES-1 |
| Overstromingsgebied | - |
| Stedenbouwkundige vergunning | Ja |
| Verkavelingsvergunning | Nee |
| Stedenbouwkundige bestemming | Woonpark |
| Voorkooprecht | Nee |
| Dagvaarding | Nee |
| Rechterlijke beslissing | - |
Sinjoor Makelaars Bredabaan 896, 2170 Antwerpen
- Telefoon:+32.3.646.66.55
- Email:info@sinjoor.be
- Website:sinjoor.be/
Makelaar
























