PAKHUYS 48 - LUXE GELIJKVLOERS APPARTEMENT AAN DE DIJLE
Lange Schipstraat , 2800 Mechelen—Ref. 1712018
PREVIEW: Pakhuys 48 – Luxe wonen aan de Dijle: een unieke ervaring in hartje Mechelen
Welkom in Pakhuys 48, een luxueus gelijkvloers appartement aan de Lange Schipstraat, waar modern wooncomfort en een adembenemend uitzicht op de Dijle samenkomen.
Dit appartement biedt een ongeëvenaarde combinatie van rust, elegantie en een topligging in het bruisende centrum van Mechelen.
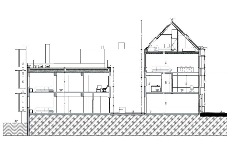
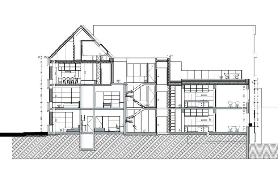
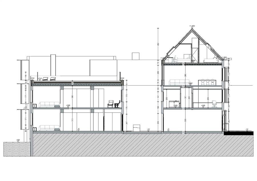
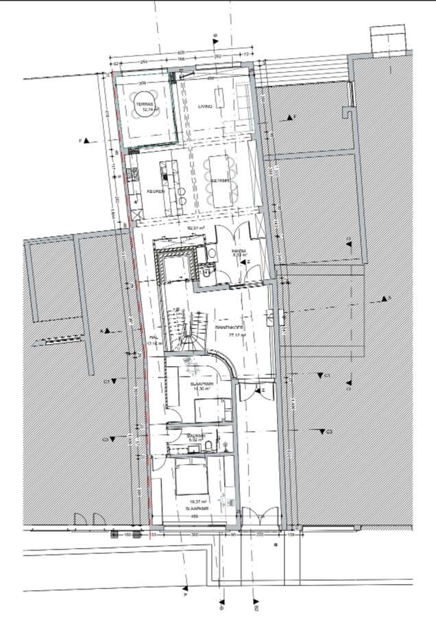
Indeling
Bij binnenkomst in de royale gemeenschappelijke inkomhal, grenzend aan een rustige patio, betreedt u het appartement.
Het slaapgedeelte bevindt zich aan de voorkant en biedt 2 ruime slaapkamers, gescheiden door een stijlvol afgewerkte badkamer, perfect voor rust en privacy.
Aan de achterzijde ligt het woongedeelte, met een lichte leefruimte, open keuken en eetplaats. Deze stralen warmte en gezelligheid uit, ideaal om te ontspannen of gasten te ontvangen. Het inpandige, westelijk georiënteerde terras van 13 m² verlengt de leefruimte en biedt een prachtig uitzicht op het water – perfect voor lange zomeravonden.
Afwerking
Met een woonoppervlakte van 132 m² wordt dit appartement afgewerkt met hoogwaardige materialen. Vloerverwarming en energiezuinige voorzieningen (EPC: A) garanderen comfort en duurzaamheid.
Oplevering is gepland voor de zomer van 2026.
Uw droomwoning wacht
Pakhuys 48 combineert tijdloze elegantie met moderne luxe.
Neem vandaag nog contact met ons op voor meer informatie of een persoonlijke bezichtiging.
Welkom in Pakhuys 48, een luxueus gelijkvloers appartement aan de Lange Schipstraat, waar modern wooncomfort en een adembenemend uitzicht op de Dijle samenkomen.
Dit appartement biedt een ongeëvenaarde combinatie van rust, elegantie en een topligging in het bruisende centrum van Mechelen.
Indeling
Bij binnenkomst in de royale gemeenschappelijke inkomhal, grenzend aan een rustige patio, betreedt u het appartement.
Het slaapgedeelte bevindt zich aan de voorkant en biedt 2 ruime slaapkamers, gescheiden door een stijlvol afgewerkte badkamer, perfect voor rust en privacy.
Aan de achterzijde ligt het woongedeelte, met een lichte leefruimte, open keuken en eetplaats. Deze stralen warmte en gezelligheid uit, ideaal om te ontspannen of gasten te ontvangen. Het inpandige, westelijk georiënteerde terras van 13 m² verlengt de leefruimte en biedt een prachtig uitzicht op het water – perfect voor lange zomeravonden.
Afwerking
Met een woonoppervlakte van 132 m² wordt dit appartement afgewerkt met hoogwaardige materialen. Vloerverwarming en energiezuinige voorzieningen (EPC: A) garanderen comfort en duurzaamheid.
Oplevering is gepland voor de zomer van 2026.
Uw droomwoning wacht
Pakhuys 48 combineert tijdloze elegantie met moderne luxe.
Neem vandaag nog contact met ons op voor meer informatie of een persoonlijke bezichtiging.
| Vastgoed ID | 1712018 |
|---|---|
| Vraagprijs | € 749.000 |
| Woningtype | Appartement |
| Woonopp. | 132 m² |
| Terrasopp. | 13 m² |
| Perceelopp. | - |
| Bouwjaar | - |
| Renovatiejaar | - |
| Slaapkamers | 2 |
| Badkamers | 1 |
| Garages | - |
| Douchekamers | - |
| Kadastraal Inkomen | - |
|---|---|
| EPC | - |
| Unieke code | - |
| Overstromingsgebied | - |
| Stedenbouwkundige vergunning | Ja |
| Verkavelingsvergunning | - |
| Stedenbouwkundige bestemming | Woongebied met culturele,historische en/of estetische waarde |
| Voorkooprecht | - |
| Dagvaarding | - |
| Rechterlijke beslissing | - |
Immo ID Keizerstraat 18 B 18 B, 2800 Mechelen
- Telefoon: +32.15.490.900
- Email:mechelen@immoid.be
- Website:www.immoid.be
- Maandag - VrijdagOpen van 09.00 - 17.00
- Zaterdag Op afspraak
- Zondag Gesloten
Makelaar















