Top gelegen villa te koop op 1683 m2 grond
Antoon de Lalaingstraat 22, 2320 Hoogstraten—Ref. 7109999
Deze ruime villa is gelegen op een absolute toplocatie in Hoogstraten, in een rustige wijk die garant staat voor maximale privacy en een hoogwaardige woonomgeving. De eigendom bevindt zich op een perceel van 1.683m² en beschikt over een bewoonbare oppervlakte van 272 m², ideaal voor gezinnen die op zoek zijn naar ruimte, comfort en discretie.
Het perceel bestaat uit 2 bouwgronden van 1.185m² en 498m².
Kenmerken:
• 4 volwaardige slaapkamers
• 2 badkamers
• Zonnige terrassen en een uitgestrekte tuin
• Inpandige werkplaats
• Meerdere parkeerplaatsen op eigen terrein
Indeling:
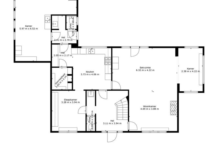
Gelijkvloers:
• Inkomhal met gastentoilet
• Bureau
• Open leef- en eetruimte
• Volledig uitgeruste keuken
• Berging
• Extra toilet
• Achterinkom
• Werkplaats
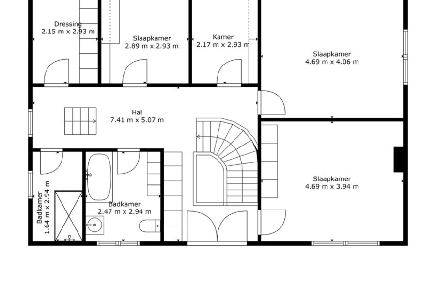
Eerste verdieping:
• Slaapkamer 1: ±20 m²
• Slaapkamer 2: ±20 m²
• Slaapkamer 3 & 4
• Dressing
• Badkamer 1 & 2
Tweede verdieping:
• In te richten leefzolder van 99 m²
Deze villa biedt een uitstekende balans tussen hoogwaardige afwerking, functionele indeling en een uitzonderlijke ligging. Voor verdere informatie of het inplannen van een bezichtiging, neem gerust contact op.
Het perceel bestaat uit 2 bouwgronden van 1.185m² en 498m².
Kenmerken:
• 4 volwaardige slaapkamers
• 2 badkamers
• Zonnige terrassen en een uitgestrekte tuin
• Inpandige werkplaats
• Meerdere parkeerplaatsen op eigen terrein
Indeling:
Gelijkvloers:
• Inkomhal met gastentoilet
• Bureau
• Open leef- en eetruimte
• Volledig uitgeruste keuken
• Berging
• Extra toilet
• Achterinkom
• Werkplaats
Eerste verdieping:
• Slaapkamer 1: ±20 m²
• Slaapkamer 2: ±20 m²
• Slaapkamer 3 & 4
• Dressing
• Badkamer 1 & 2
Tweede verdieping:
• In te richten leefzolder van 99 m²
Deze villa biedt een uitstekende balans tussen hoogwaardige afwerking, functionele indeling en een uitzonderlijke ligging. Voor verdere informatie of het inplannen van een bezichtiging, neem gerust contact op.
| Vastgoed ID | 7109999 |
|---|---|
| Vraagprijs | € 1.069.000 |
| Woningtype | Villa |
| Woonopp. | 272 m² |
| Terrasopp. | 24 m² |
| Perceelopp. | 1.683 m² |
| Bouwjaar | 1965 |
| Renovatiejaar | - |
| Slaapkamers | 5 |
| Badkamers | 2 |
| Garages | 2 |
| Douchekamers | - |
| Kadastraal Inkomen | - |
|---|---|
| EPC | 386 kWh/m² |
| Unieke code | 20250227-0003541316-RES-1 |
| Overstromingsgebied | Niet gelegen in gevoelig gebied |
| Stedenbouwkundige vergunning | Ja |
| Verkavelingsvergunning | Ja |
| Stedenbouwkundige bestemming | Woongebied |
| Voorkooprecht | Nee |
| Dagvaarding | Nee |
| Rechterlijke beslissing | - |
Albert Immo Rijkevorsel Hoek 29, 2310 Rijkevorsel
- Telefoon:+32.4.74.34.43.00
- Email:rijkevorsel@albert.immo
- Website:albert.immo/
Makelaar












































