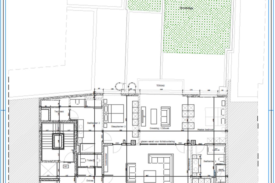
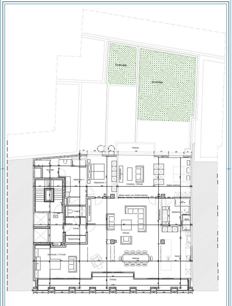
New-build apartment with terrace!
Koningin Astridplein 12-13, 2018 Antwerpen—Ref. W-047567
This stylish residence will be delivered in shell condition, giving you, the buyer, the unique opportunity to translate your own taste and style into the interior design. You can choose the kitchen, bathrooms, floor, wall coverings and paintwork yourself making this flat truly your home.
The four flats and the penthouse are already equipped with a complete electrical installation, including light points, sockets andfixtures. Home automation can be cleverly integrated for maximum user comfort, and fire and alarm detection are also provided on every floor.
Thanks to the solar panels on the roof, the type D ventilation system and underfloor heating in each flat, you will not only live comfortably here, but also energy-efficiently and with an eye to the future. For hot days, each unit is also equipped with air conditioning. All sanitary pipes have already been installed and an electric boiler provides hot water in the kitchen and bathroom.
All units have attractive outdoor spaces with open views towards Central Station. In the basement, you will also find private storage rooms and bicycle parking facilities. Here you will live in a high-quality, sustainable building where modern living comfort and personalised finishes come together seamlessly. Please do not hesitate to contact our office (03/233.24.00) for more information about the available units.
Located at the Koningin Astrid Square, directly opposite the Central Station, this property is situated in a vibrant and strategic location in the heart of Antwerp. The square itself will undergo a complete redevelopment to be completed by 2028. This large-scale renewal will transform the square into a modern, green, and attractive city square, a tremendous asset for the neighborhood and for those who live or invest here.
The four flats and the penthouse are already equipped with a complete electrical installation, including light points, sockets andfixtures. Home automation can be cleverly integrated for maximum user comfort, and fire and alarm detection are also provided on every floor.
Thanks to the solar panels on the roof, the type D ventilation system and underfloor heating in each flat, you will not only live comfortably here, but also energy-efficiently and with an eye to the future. For hot days, each unit is also equipped with air conditioning. All sanitary pipes have already been installed and an electric boiler provides hot water in the kitchen and bathroom.
All units have attractive outdoor spaces with open views towards Central Station. In the basement, you will also find private storage rooms and bicycle parking facilities. Here you will live in a high-quality, sustainable building where modern living comfort and personalised finishes come together seamlessly. Please do not hesitate to contact our office (03/233.24.00) for more information about the available units.
Located at the Koningin Astrid Square, directly opposite the Central Station, this property is situated in a vibrant and strategic location in the heart of Antwerp. The square itself will undergo a complete redevelopment to be completed by 2028. This large-scale renewal will transform the square into a modern, green, and attractive city square, a tremendous asset for the neighborhood and for those who live or invest here.
| Property ID | W-047567 |
|---|---|
| Asking price | € 1.170.000 |
| Type of house | Apartment |
| Living area | 221 m² |
| Terrasopp. | 35 m² |
| Lot surface area | - |
| Year of construction | 2025 |
| Renovation year | - |
| Bedrooms | 2 |
| Bathrooms | 2 |
| Garages | - |
| Shower rooms | - |
| Cadastral Income | - |
|---|---|
| EPC | - |
| Unique code | - |
| Flood area | Niet medegedeeld |
| Planning permit | Yes |
| Parcelling permit | - |
| Planning permit | Other |
| Pre-emptive right | - |
| Originating Summons | - |
| Judicial decision | - |
Premium broker
Engel & Völkers Antwerpen-Centrum Leopoldstraat 49, 2000 Antwerpen
- Telephone:+32.3.233.24.00
- EMAIL:Antwerpencentrum@engelvoelkers.com
- Website:www.engelvoelkers.com/belgium
- Monday - SaturdayOpen from 10.00 - 18.00
- Sunday Closed
Broker
















