Luxury duplex penthouse A0801 Van Meterenkaai 1 box A0801, 2000 Antwerpen
Ref. D2000-21073-0801

Dewaele Antwerpen
Asking price€ 1.855.000
Lot surface areaNot known
Living area219 m²

Contact Dewaele Antwerpen

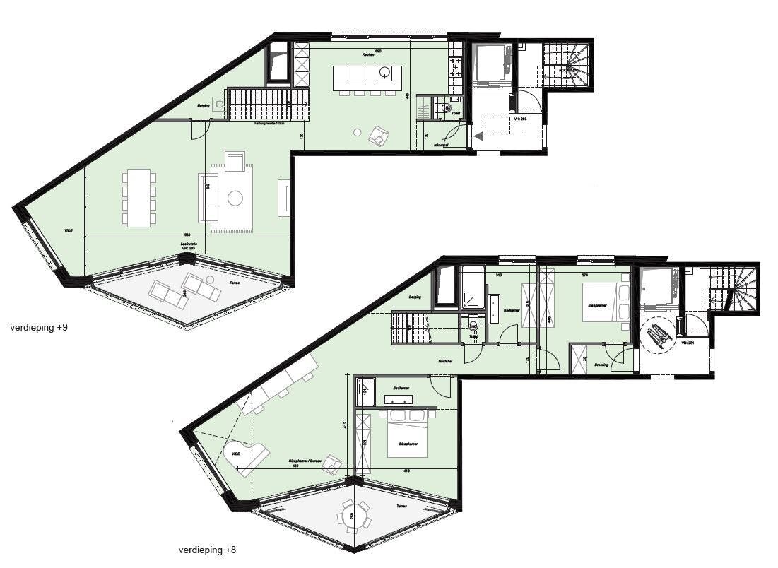
General Features: - new build project in top location in Antwerp - terrace with unique views of the Scheldt and the Linkeroever marina - underfloor heating - microtopping and customization option - solar panels - partly sales under registration, partly under VAT Layout 9th floor - entrance hall with separate toilet - Eating kitchen with panoramic views of the City. - spacious living space with unique view of the Scheldt and Left Bank - storeroom - open terrace - stairs down 8th floor - night hall - open room which can be furnished as a desk, library or third bedroom - terrace with screwing system - master bedroom at the quiet back with ensuite dressing - bathroom with walk-in shower and double sink - front bedroom with terrace access - shower room - separate toilet Microtopping “Less is More” This new build project in Antwerp offers several additional options for finishing such as microtopping. Microtopping is a perfect choice for those who love a seamless surface, vertically or horizontally for a unique, elegant and modern look. An endless choice of colours, effects and finishes. Even More Goplus gives you even more options in Rivert, which is to fully customize the overall interior. This ranges from an integrated wood veneer wall to partitions, dressing and doors. The sky's the limit! Sales under VAT system. Are you interested in new construction, apartment or property for sale in Antwerp? Please don't hesitate to contact us. If you would like to offer your own property for sale please contact us for a non-binding estimate, by phone at 03/206.76.76 or by email to antwerpen@dewaele.com. You can also contact us for all other questions about real estate, buying or selling in Antwerp.

Property IDD2000-21073-0801
Asking price€ 1.855.000
Type of housePenthouse
Living area219 m²
Terrasopp.22 m²
Lot surface area -
Year of construction2025
Renovation year -
Bedrooms2
Bathrooms2
Garages -
Shower rooms -

Cadastral Income-
EPC-
Unique code-
Flood areaNiet gelegen in gevoelig gebied
Planning permit Yes
Parcelling permit No
Planning permit Residential area with cultural, historical and/or aesthetic value
Pre-emptive right No
Originating Summons No
Judicial decision No

Dewaele Antwerpen Frankrijklei 84, 2000 Antwerpen

  • Monday - SaturdayOnly on appointment
  • Sunday Closed

Contact Dewaele Antwerpen