PUTTE - Instapklare woning en polyvalent bijgebouw op 60are
Kegelstraat 32, 2580 Putte—Ref. 7598164
PUTTE – Instapklare woning met polyvalent bijgebouw op ca. 60 are
Deze prachtig afgewerkte woning met multifunctioneel bijgebouw bevindt zich op een ruim perceel van ongeveer 60 are. Zowel het hoofdgebouw als het bijgebouw zijn met veel zorg en oog voor detail ingericht.
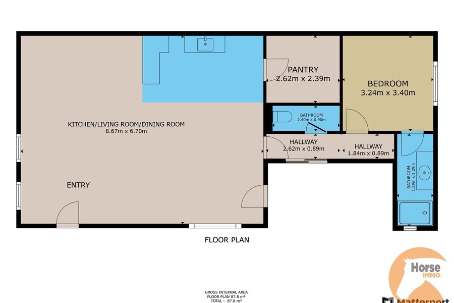
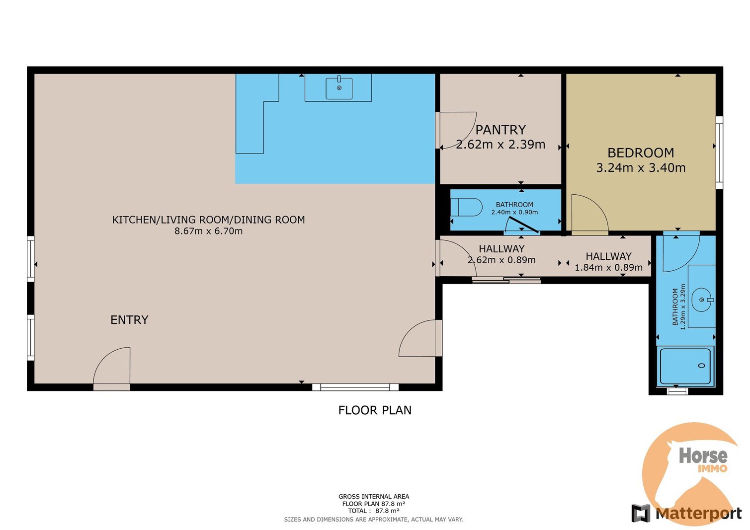
De leefruimte bestaat uit een open geheel van woonkamer, eetkamer en keuken, wat zorgt voor een aangenaam en ruimtelijk gevoel. De keuken straalt warmte uit dankzij de gekozen kleuren en materialen en is volledig uitgerust met alle hedendaagse comfort: koelkast, vaatwasser, spoelbak, microgolfoven en een stijlvol SMEG-fornuis met drie ovens.
Aansluitend bevindt zich een praktische bijkeuken met aansluiting voor wasmachine en droogkast, eveneens smaakvol afgewerkt.
Vanuit de ruime leefruimte en eetplaats geniet je van een mooi zicht op het terras en de tuin, waardoor binnen en buiten naadloos in elkaar overlopen.
Via de houten trap in de inkomhal bereik je de bovenverdieping. Hier bevinden zich drie slaapkamers en een verzorgde badkamer met bad, douche en dubbele lavabo. De warme en harmonieuze stijl van de benedenverdieping wordt ook hier verder doorgetrokken.
De woning beschikt bovendien over een volledige kelder.
Naast de woning staat een polyvalent bijgebouw met een totale oppervlakte van ongeveer 100 m². Dit gebouw is verwarmbaar en praktisch ingericht, met eveneens zicht op de tuin. Ideaal als gezellige plek voor een zomerse barbecue of een winterse avond met vrienden.
Voor paardenliefhebbers is deze eigendom extra aantrekkelijk: er zijn twee paardenstallen, een paddock en weide aanwezig. De weides zijn degelijk afgesloten met een houten omheining.
Ben je op zoek naar een instapklare woning waar je je paarden aan huis kan houden? Dan is dit misschien precies wat je zoekt.
Voor meer informatie kan je ons steeds contacteren via 053/60.65.66.
Deze prachtig afgewerkte woning met multifunctioneel bijgebouw bevindt zich op een ruim perceel van ongeveer 60 are. Zowel het hoofdgebouw als het bijgebouw zijn met veel zorg en oog voor detail ingericht.
De leefruimte bestaat uit een open geheel van woonkamer, eetkamer en keuken, wat zorgt voor een aangenaam en ruimtelijk gevoel. De keuken straalt warmte uit dankzij de gekozen kleuren en materialen en is volledig uitgerust met alle hedendaagse comfort: koelkast, vaatwasser, spoelbak, microgolfoven en een stijlvol SMEG-fornuis met drie ovens.
Aansluitend bevindt zich een praktische bijkeuken met aansluiting voor wasmachine en droogkast, eveneens smaakvol afgewerkt.
Vanuit de ruime leefruimte en eetplaats geniet je van een mooi zicht op het terras en de tuin, waardoor binnen en buiten naadloos in elkaar overlopen.
Via de houten trap in de inkomhal bereik je de bovenverdieping. Hier bevinden zich drie slaapkamers en een verzorgde badkamer met bad, douche en dubbele lavabo. De warme en harmonieuze stijl van de benedenverdieping wordt ook hier verder doorgetrokken.
De woning beschikt bovendien over een volledige kelder.
Naast de woning staat een polyvalent bijgebouw met een totale oppervlakte van ongeveer 100 m². Dit gebouw is verwarmbaar en praktisch ingericht, met eveneens zicht op de tuin. Ideaal als gezellige plek voor een zomerse barbecue of een winterse avond met vrienden.
Voor paardenliefhebbers is deze eigendom extra aantrekkelijk: er zijn twee paardenstallen, een paddock en weide aanwezig. De weides zijn degelijk afgesloten met een houten omheining.
Ben je op zoek naar een instapklare woning waar je je paarden aan huis kan houden? Dan is dit misschien precies wat je zoekt.
Voor meer informatie kan je ons steeds contacteren via 053/60.65.66.
| Property ID | 7598164 |
|---|---|
| Asking price | € 865.000 |
| Type of house | Villa |
| Living area | 180 m² |
| Terrasopp. | - |
| Lot surface area | 6.314 m² |
| Year of construction | 1991 |
| Renovation year | 2021 |
| Bedrooms | 3 |
| Bathrooms | 1 |
| Garages | 1 |
| Shower rooms | 1 |
| Cadastral Income | - |
|---|---|
| EPC | 395 kWh/m² |
| Unique code | 20250703-0003640057-RES-1 |
| Flood area | Effectief gevoelig gebied |
| Planning permit | Yes |
| Parcelling permit | No |
| Planning permit | Agricultural area |
| Pre-emptive right | Yes |
| Originating Summons | No |
| Judicial decision | - |
Horse Immo Hoogstraat 20, 9340 Lede
- Telephone:+32.53.60.65.66
- EMAIL:info@horse-immo.be
- Website:www.horse-immo.be








































