Detached House with Tree-Lined Garden in Quiet Aubange
Rue de la Gendarmerie 61, 6790 Aubange—Ref. 1468129
ERA B-LUX is pleased to present this superb detached home, ideally situated on a tree-lined lot in a quiet and highly sought-after residential neighborhood.
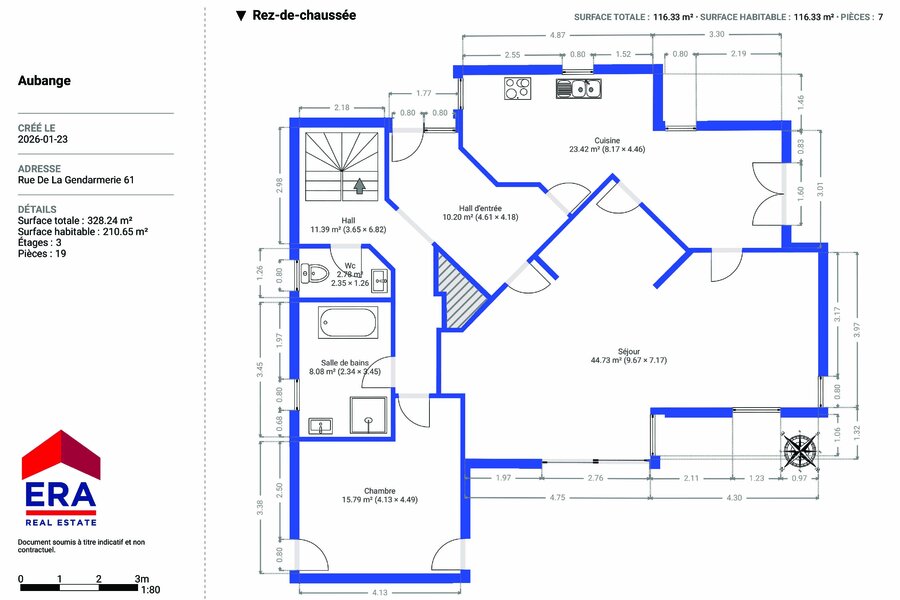
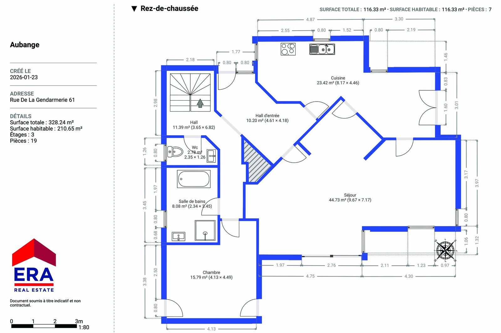
You’ll be charmed by the generous floor plans and the natural light flooding the living areas. The ground floor features an entryway, a dining room, a spacious living room, a kitchen, as well as an office, a bedroom, a bathroom, and a separate half-bath.
The living areas open onto large terraces at the front and back, perfect for enjoying the tree-lined garden, which also features a heated pool with a sliding cover.
Upstairs, the hallway leads to four comfortable bedrooms and a shower room.
The basement houses a cellar and a utility room with a recent boiler. Outside, a private driveway leads to a two-car garage and several parking spaces.
A rare opportunity combining spaciousness, comfort, and a privileged setting, ideal for those seeking space and tranquility.
Technical details: EPC C, up-to-code electrical system, oil-fired condensing boiler, heat pump for the pool.
Interested? Contact ERA B-LUX for more information or to schedule a viewing.
Translated with DeepL.com (free version)
You’ll be charmed by the generous floor plans and the natural light flooding the living areas. The ground floor features an entryway, a dining room, a spacious living room, a kitchen, as well as an office, a bedroom, a bathroom, and a separate half-bath.
The living areas open onto large terraces at the front and back, perfect for enjoying the tree-lined garden, which also features a heated pool with a sliding cover.
Upstairs, the hallway leads to four comfortable bedrooms and a shower room.
The basement houses a cellar and a utility room with a recent boiler. Outside, a private driveway leads to a two-car garage and several parking spaces.
A rare opportunity combining spaciousness, comfort, and a privileged setting, ideal for those seeking space and tranquility.
Technical details: EPC C, up-to-code electrical system, oil-fired condensing boiler, heat pump for the pool.
Interested? Contact ERA B-LUX for more information or to schedule a viewing.
Translated with DeepL.com (free version)
| Property ID | 1468129 |
|---|---|
| Asking price | € 750.000 |
| Type of house | Villa |
| Living area | 210 m² |
| Terrasopp. | - |
| Lot surface area | 1.548 m² |
| Year of construction | 1987 |
| Renovation year | - |
| Bedrooms | 4 |
| Bathrooms | 2 |
| Garages | 1 |
| Shower rooms | - |
| Cadastral Income | € 1.251 |
|---|---|
| EPC | 187 kWh/m² |
| Unique code | 20200918004503 |
| Flood area | Niet gelegen in gevoelig gebied |
| Planning permit | Yes |
| Parcelling permit | No |
| Planning permit | - |
| Pre-emptive right | No |
| Originating Summons | No |
| Judicial decision | - |
ERA B-Lux Chaussée de Liège 76, 6900 Marche-en-Famenne
- Telephone:+32.84.31.18.88
- EMAIL:info@erablux.be
- Website:www.era.be/fr/era-b-lux


























