Zeer luxueus appartement in het centrum van Doornik
7500 Tournai—Ref. 7341905
Venez découvrir ce prestigieux appartement situé sur l'ensemble du deuxième plateau d'une ancienne église réhabilitée !
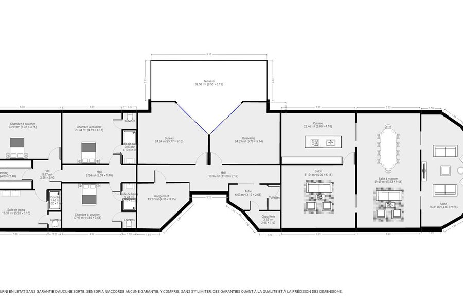
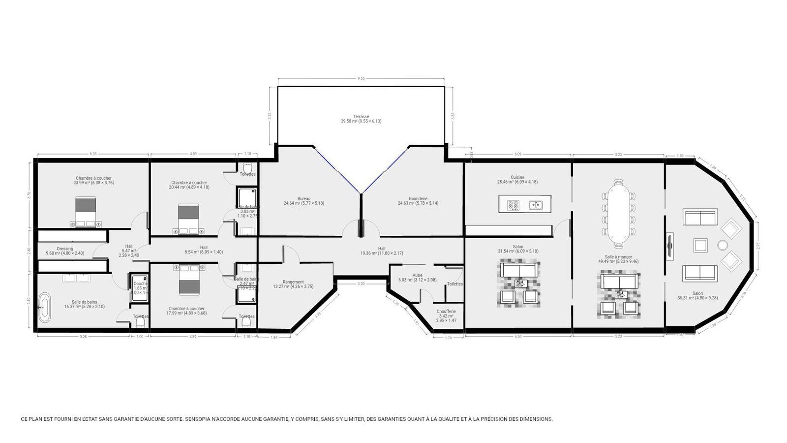
Lieu de vie d'exception, le bien comprend une large entrée menant sur un séjour baigné de lumière à proximité directe du salon équipée d'une cheminée au gaz.
La cuisine "Bulthaup" est ultra équipée et possède un avec coin repas et vue sur la ville.
Côté nuit, vous profiterez de deux suites indépendantes avec dressing, salle de douche, wc séparé et balcon ainsi que d'une suite parentale composée d'une chambre avec vue sur la cathédrale et le Mont Saint Aubert, d'un grand dressing et une salle de bain tout confort avec douche hammam et baignoire balnéothérapie.
A cela s'ajoute un spacieux bureau avec rangements sur mesure, deux grandes terrasses couvertes, une buanderie et espace technique.
L'appartement possède une cave ainsi que 3 garages.
Caractéristiques : Chauffage au sol (gaz), parquet massif en chêne, installation hifi intégrale (Bower & Wilkins), nombreux rangements sur mesure.
Publicité à caractère non contractuel et ne constituant pas une offre.
Les propriétaires se réservent le droit de décision, d'acceptation ou non sur toute(s) offre(s) soumise(s) pour leur bien.
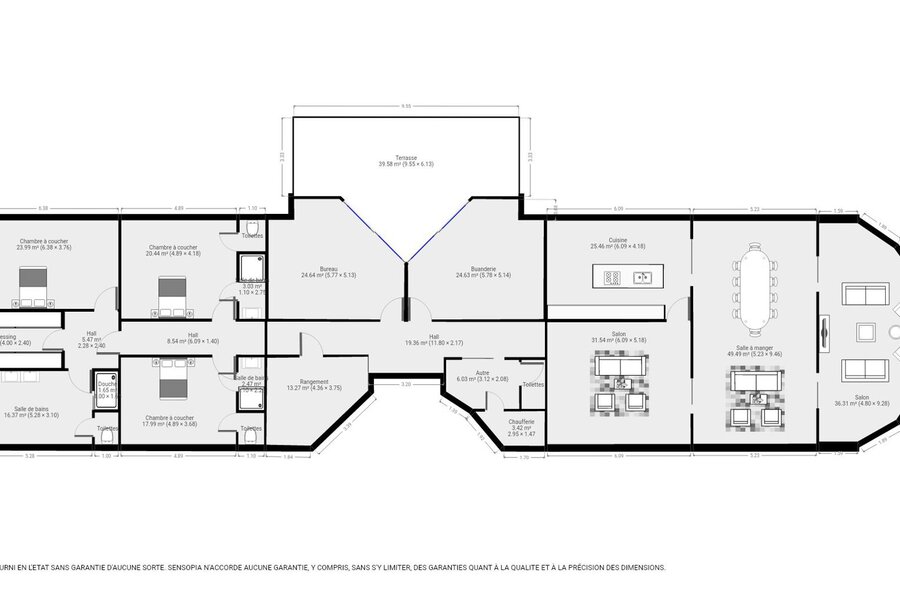
Lieu de vie d'exception, le bien comprend une large entrée menant sur un séjour baigné de lumière à proximité directe du salon équipée d'une cheminée au gaz.
La cuisine "Bulthaup" est ultra équipée et possède un avec coin repas et vue sur la ville.
Côté nuit, vous profiterez de deux suites indépendantes avec dressing, salle de douche, wc séparé et balcon ainsi que d'une suite parentale composée d'une chambre avec vue sur la cathédrale et le Mont Saint Aubert, d'un grand dressing et une salle de bain tout confort avec douche hammam et baignoire balnéothérapie.
A cela s'ajoute un spacieux bureau avec rangements sur mesure, deux grandes terrasses couvertes, une buanderie et espace technique.
L'appartement possède une cave ainsi que 3 garages.
Caractéristiques : Chauffage au sol (gaz), parquet massif en chêne, installation hifi intégrale (Bower & Wilkins), nombreux rangements sur mesure.
Publicité à caractère non contractuel et ne constituant pas une offre.
Les propriétaires se réservent le droit de décision, d'acceptation ou non sur toute(s) offre(s) soumise(s) pour leur bien.
| Property ID | 7341905 |
|---|---|
| Asking price | € 1.350.000 |
| Type of house | Apartment |
| Living area | 350 m² |
| Terrasopp. | - |
| Lot surface area | - |
| Year of construction | 2016 |
| Renovation year | - |
| Bedrooms | 3 |
| Bathrooms | 3 |
| Garages | 3 |
| Shower rooms | 3 |
| Cadastral Income | € 4.857 |
|---|---|
| EPC | 70 kWh/m² |
| Unique code | 20150623006349 |
| Flood area | Niet medegedeeld |
| Planning permit | Yes |
| Parcelling permit | No |
| Planning permit | Residential area |
| Pre-emptive right | No |
| Originating Summons | - |
| Judicial decision | - |
Immo Emeraude Tournai Boulevard du Roi Albert 44, 7500 Doornik
- Telephone:+32.69.64.69.64
- EMAIL:info.emeraude@dlgroupe.com
- Website:www.immo-emeraude.com
- Monday - ThursdayOpen from 09.00 - 12.00 – 13.30 - 18.30
- Friday Open from 09.00 - 12.00 – 13.30 - 18.00
- Saturday Open from 09.00 - 12.00
- Sunday Closed



















