FOR SALE: High-end apartment – Boulevard Frère Orban
Boulevard Frère-Orban 50, 4000 Luik—Ref. 1469276
Are you looking for a unique property combining luxury, modern comfort and breathtaking views?
ERA Blavier is exclusively offering this superb flat located on the 6th floor of a prestigious residence, completely renovated in 2020.
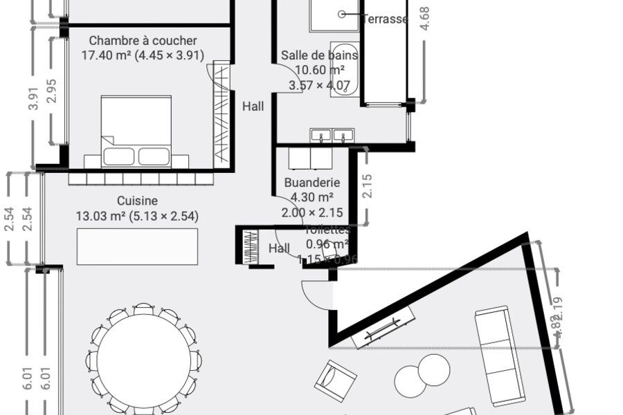
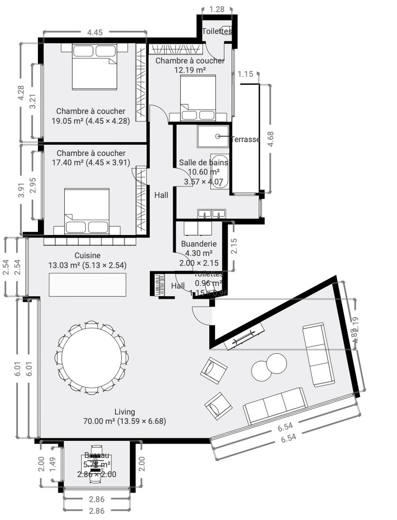
With a surface area of over 160 m², this property stands out for its elegance, high-quality materials and abundant natural light.
The living area offers a warm and refined atmosphere. The fully equipped open-plan kitchen blends harmoniously into this convivial space.
The sleeping area comprises three large bedrooms, one smaller (modular) bedroom, a bathroom and a quiet balcony.
Optional (value of the lot: €99,000): a private garage on the ground floor, adjoining an office space of nearly 50 m² (currently converted into student accommodation and ideal for a liberal profession).
PEB D — No. 20180423008905 E spec: 281 — E total: 54,704 kWh/year.
Interested? Don't delay, contact us on 04/232.21.21 to arrange a private viewing!
The information provided is for information purposes only and is not contractually binding. The owner reserves the right to sell or not to sell the property and to choose the offer that best meets their criteria, regardless of the amount.
| Property ID | 1469276 |
|---|---|
| Asking price | € 549.000 |
| Type of house | Apartment |
| Living area | 218 m² |
| Terrasopp. | - |
| Lot surface area | - |
| Year of construction | 1957 |
| Renovation year | - |
| Bedrooms | 3 |
| Bathrooms | 2 |
| Garages | 1 |
| Shower rooms | - |
| Cadastral Income | - |
|---|---|
| EPC | 281 kWh/m² |
| Unique code | 20180423008905 |
| Flood area | Niet medegedeeld |
| Planning permit | - |
| Parcelling permit | No |
| Planning permit | - |
| Pre-emptive right | No |
| Originating Summons | No |
| Judicial decision | - |
ERA Blavier Boulevard d'Avroy 55, 4000 Luik
- Telephone:+32.4.232.21.21
- EMAIL:info@erablavier.be
- Website:www.era.be/nl/era-blavier/liege


























