Instapklare topper met 5 slpks & uitweg achteraan
Koning Albert I Laan 183, 8200 Sint Michiels—Ref. 7196
Instapklaar wonen zonder compromissen? Deze karaktervolle woning op een topligging in Sint-Michiels combineert ruimte, afwerking en techniek op een niveau dat zelden op de markt komt.
Deze woning werd niet gerenoveerd om te verkopen, maar om zelf in te wonen. Elk detail werd doordacht uitgevoerd door een aannemer, met duurzame materialen en moderne technieken als basis. Zo beschikt de woning over een conforme elektrische installatie én een sterke energetische prestatie met label A (80 kWh/m²) – een zeldzame combinatie van comfort en energiezuinigheid.
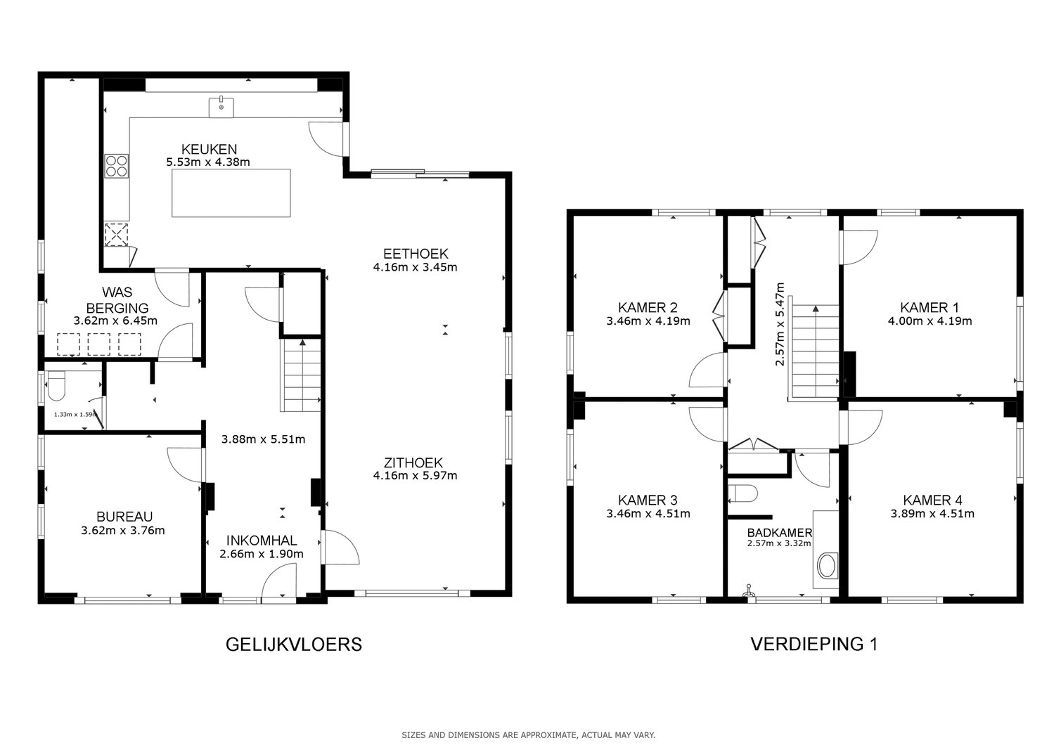
Binnenin geniet u van een lichtrijke leefruimte, een volledig uitgeruste keuken en een praktische indeling met 5 volwaardige slaapkamers, waaronder een bureau/slaapkamer op het gelijkvloers – ideaal voor thuiswerk of praktijk. De nachthal met ingemaakte kasten, ruime kamers en luxueuze badkamer zorgen voor een perfect gezinscomfort.
De extra troef? Een tweede toegang achteraan via de Kleine Tillegemstraat, wat flexibiliteit en bereikbaarheid aanzienlijk verhoogt.
Dit is geen woning waar nog moet worden nagedacht over renovaties. Dit is een woning waar u meteen kan wonen, met de zekerheid dat alles klopt.
Bent u op zoek naar kwaliteit, ruimte en rust op een strategische ligging? Dan is dit een kans die u best zelf komt ervaren.
Interesse?
| Property ID | 7196 |
|---|---|
| Asking price | € 884.800 |
| Type of house | Villa |
| Living area | 259 m² |
| Terrasopp. | - |
| Lot surface area | 611 m² |
| Year of construction | 1963 |
| Renovation year | 2024 |
| Bedrooms | 5 |
| Bathrooms | 1 |
| Garages | - |
| Shower rooms | - |
| Cadastral Income | € 1.224 |
|---|---|
| EPC | 80 kWh/m² |
| Unique code | |
| Flood area | Niet gelegen in gevoelig gebied |
| Planning permit | - |
| Parcelling permit | - |
| Planning permit | Other |
| Pre-emptive right | No |
| Originating Summons | No |
| Judicial decision | No |
Altro Brugge Koning Albert I-laan 207, 8200 Brugge
- Telephone:+32.50.22.33.44
- EMAIL:info@altro-vastgoed.be
- Website:www.altro-vastgoed.be






























