Bouwgrond van 1050 m² met 4-gevel op maat
Geraardsbergse steenweg 256, 9860 Oosterzele—Ref. 6884369
In het landelijke Oosterzele biedt Unicas een unieke kans: de combinatie van lot 3 en lot 4 tot één royale open bebouwing op een perceel van ruim 1.050 m². Perfect voor wie op zoek is naar meer ruimte, vrijheid in indeling én een energiezuinige woning gebouwd met duurzame materialen.
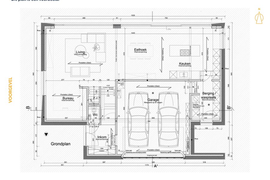
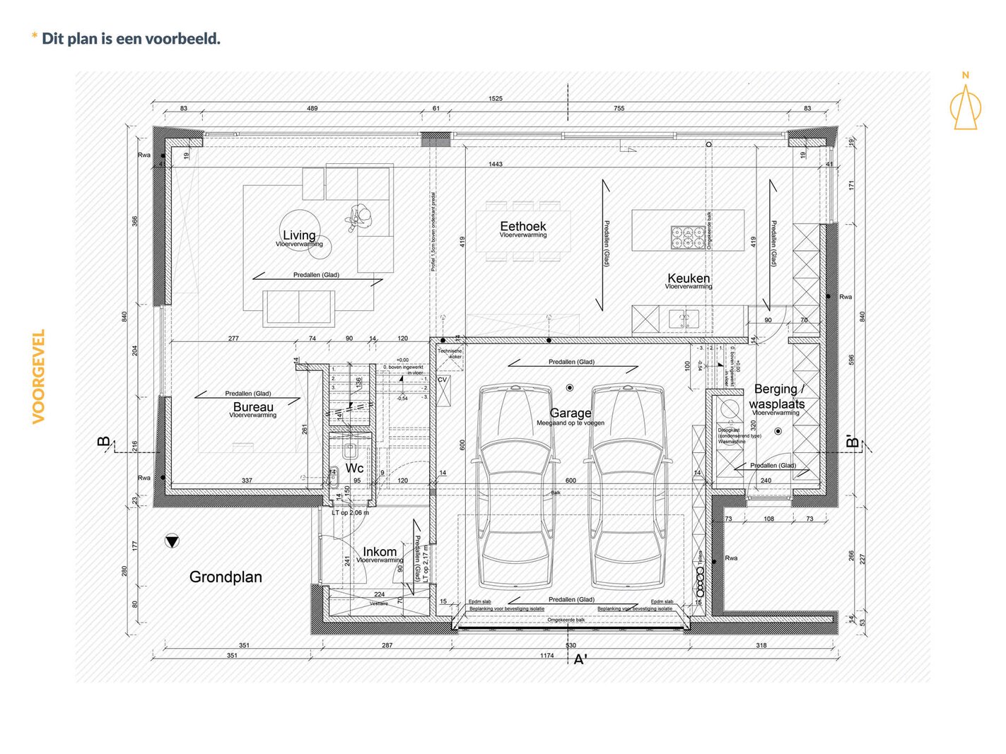
De voorgestelde woning is een voorbeeld van wat mogelijk is op dit perceel en heeft een bewoonbare oppervlakte van 200 m². Je geniet van een doordacht ontwerp met grote raampartijen, veel lichtinval en een comfortabele indeling over twee verdiepingen. Op het gelijkvloers vind je een open keuken, eetruimte, gezellige zithoek, ruime bureau, praktische berging/wasplaats, apart gastentoilet en een inpandige garage met plaats voor twee wagens.
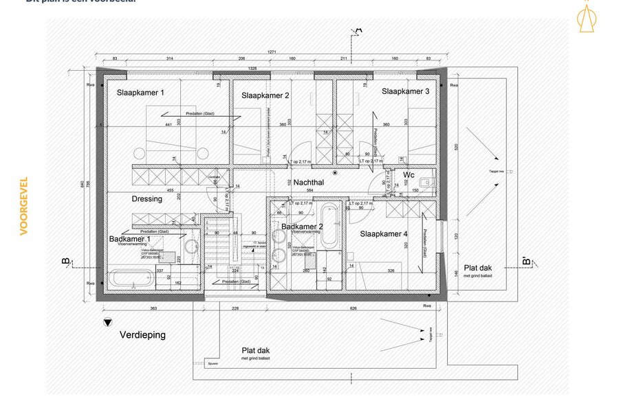
Op de verdieping bevinden zich 4 volwaardige slaapkamers, waaronder een master bedroom met en suite dressing en badkamer. Op de verdieping is ook een tweede badkamer en een extra toilet voorzien.
Je hebt als koper inspraak in de afwerking en indeling. Warmtepomp, vloerverwarming, balansventilatie en zonnepanelen zorgen bovendien voor een laag energieverbruik en modern wooncomfort.
Benieuwd naar de mogelijkheden? Neem contact met ons op voor een afspraak.
De voorgestelde woning is een voorbeeld van wat mogelijk is op dit perceel en heeft een bewoonbare oppervlakte van 200 m². Je geniet van een doordacht ontwerp met grote raampartijen, veel lichtinval en een comfortabele indeling over twee verdiepingen. Op het gelijkvloers vind je een open keuken, eetruimte, gezellige zithoek, ruime bureau, praktische berging/wasplaats, apart gastentoilet en een inpandige garage met plaats voor twee wagens.
Op de verdieping bevinden zich 4 volwaardige slaapkamers, waaronder een master bedroom met en suite dressing en badkamer. Op de verdieping is ook een tweede badkamer en een extra toilet voorzien.
Je hebt als koper inspraak in de afwerking en indeling. Warmtepomp, vloerverwarming, balansventilatie en zonnepanelen zorgen bovendien voor een laag energieverbruik en modern wooncomfort.
Benieuwd naar de mogelijkheden? Neem contact met ons op voor een afspraak.
| Property ID | 6884369 |
|---|---|
| Asking price | € 916.992 |
| Type of house | Villa |
| Living area | 200 m² |
| Terrasopp. | - |
| Lot surface area | 1.050 m² |
| Year of construction | - |
| Renovation year | - |
| Bedrooms | 4 |
| Bathrooms | 2 |
| Garages | 2 |
| Shower rooms | - |
| Cadastral Income | - |
|---|---|
| EPC | - |
| Unique code | - |
| Flood area | Niet medegedeeld |
| Planning permit | - |
| Parcelling permit | Yes |
| Planning permit | Other |
| Pre-emptive right | - |
| Originating Summons | - |
| Judicial decision | - |
Unicas Kerkstraat 38, 1755 Gooik
- Telephone:+32.488.30.03.01
- EMAIL:info@unicas.be
- Website:www.unicas.be











