PUTTE - Mooi afgewerkte woning met bijgebouw op 63 are
Kegelstraat 32, 2580 Putte—Ref. 6823841
PUTTE - Zeer mooi afgewerkte woning met polyvalent bijgebouw op ca 60 are.
Zowel de woning als het bijgebouw genieten van een zeer mooie afwerking en inrichting!
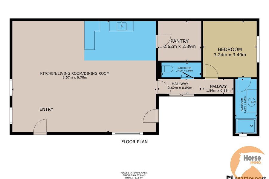
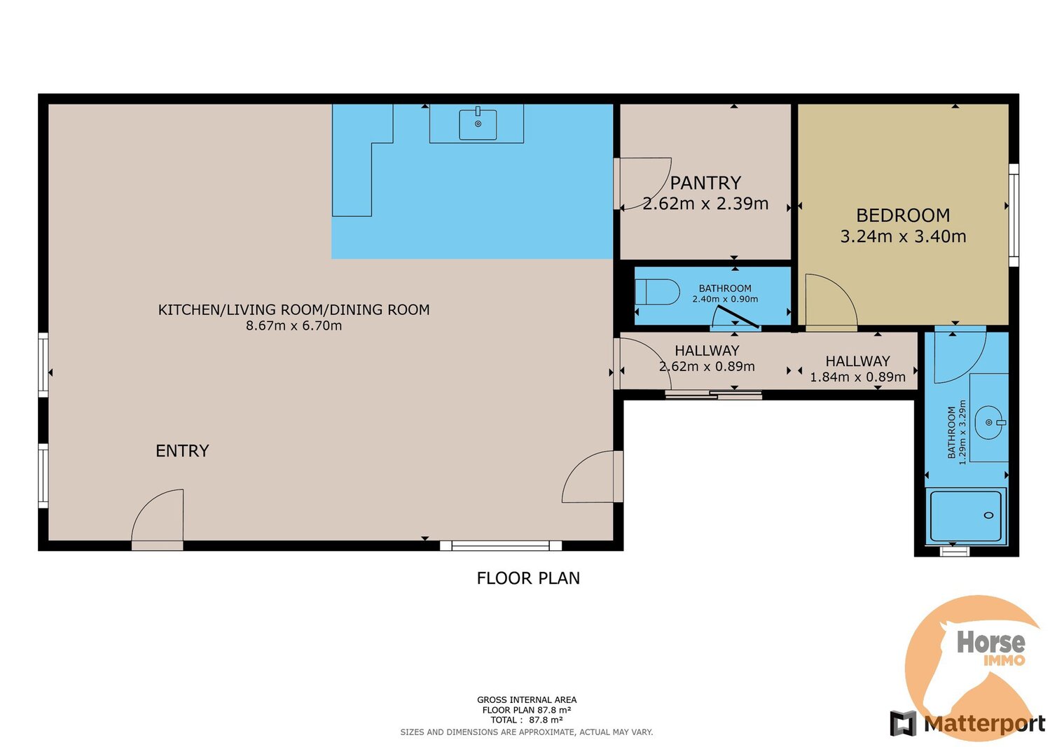
Living, eetplaats en keuken zijn met elkaar verbonden en creëren zo onmiddellijk een zeer ruimtelijk gevoel.
De keuken straalt door de kleur en de gebruikte materialen een gevoel van warmte uit. Ze is voorzien van alle comfort: koelkast, vaatwasser, wasbak, microgolfoven en een mooi SMEG fornuis met 3 ovens.
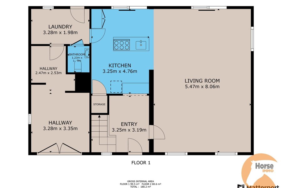
In de bijkeuken is er plaats om een wasmachine en droogkast te plaatsen. Ook deze ruimte is met de nodige smaak afgewerkt.
De ruime living en eetplaats geven uitzicht op het terras en de tuin. Hierdoor is de verbinding met buiten nooit ver weg!
Via een mooie houten trap in de inkomhal krijg je toegang tot de bovenverdieping. Hier bevinden zich 3 slaapkamers en een mooie badkamer voorzien van bad, douche en dubbele lavabo. Ook hier is de warme stijl van beneden doorgetrokken.
De volledige woning is onderkelderd.
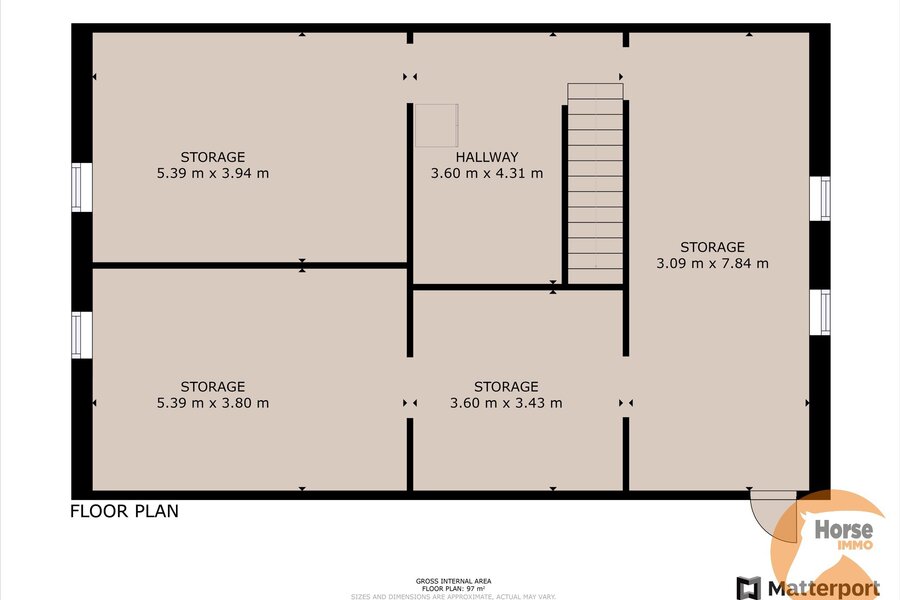
Naast de woning is een bijgebouw met een totaaloppervlakte van 100 m² aanwezig. Dit gebouw kan volledig verwarmd worden en heeft een functionele inrichting. Ook hier heeft men uitzicht op een deel van de tuin. De perfecte uitvalsbasis voor een zomerse barbeque of een koude winteravond onder vrienden.
Deze eigendom is voorzien van 2 paardenstallen, weide en een paddock. De weides zijn afgesloten met een houten afsluiting.
Ben je op zoek naar een leuke instapklare woning waar je je paarden aan huis kan stallen? Dan is deze woning wat je zoekt!
Voor verdere inlichtingen mag je ons steeds contacteren: 053/60.65.66
Zowel de woning als het bijgebouw genieten van een zeer mooie afwerking en inrichting!
Living, eetplaats en keuken zijn met elkaar verbonden en creëren zo onmiddellijk een zeer ruimtelijk gevoel.
De keuken straalt door de kleur en de gebruikte materialen een gevoel van warmte uit. Ze is voorzien van alle comfort: koelkast, vaatwasser, wasbak, microgolfoven en een mooi SMEG fornuis met 3 ovens.
In de bijkeuken is er plaats om een wasmachine en droogkast te plaatsen. Ook deze ruimte is met de nodige smaak afgewerkt.
De ruime living en eetplaats geven uitzicht op het terras en de tuin. Hierdoor is de verbinding met buiten nooit ver weg!
Via een mooie houten trap in de inkomhal krijg je toegang tot de bovenverdieping. Hier bevinden zich 3 slaapkamers en een mooie badkamer voorzien van bad, douche en dubbele lavabo. Ook hier is de warme stijl van beneden doorgetrokken.
De volledige woning is onderkelderd.
Naast de woning is een bijgebouw met een totaaloppervlakte van 100 m² aanwezig. Dit gebouw kan volledig verwarmd worden en heeft een functionele inrichting. Ook hier heeft men uitzicht op een deel van de tuin. De perfecte uitvalsbasis voor een zomerse barbeque of een koude winteravond onder vrienden.
Deze eigendom is voorzien van 2 paardenstallen, weide en een paddock. De weides zijn afgesloten met een houten afsluiting.
Ben je op zoek naar een leuke instapklare woning waar je je paarden aan huis kan stallen? Dan is deze woning wat je zoekt!
Voor verdere inlichtingen mag je ons steeds contacteren: 053/60.65.66
| Property ID | 6823841 |
|---|---|
| Asking price | € 865.000 |
| Type of house | Villa |
| Living area | 180 m² |
| Terrasopp. | - |
| Lot surface area | 6.314 m² |
| Year of construction | 1991 |
| Renovation year | 2021 |
| Bedrooms | 3 |
| Bathrooms | 1 |
| Garages | 1 |
| Shower rooms | 1 |
| Cadastral Income | - |
|---|---|
| EPC | 395 kWh/m² |
| Unique code | 20250703-0003640057-RES-1 |
| Flood area | Effectief gevoelig gebied |
| Planning permit | Yes |
| Parcelling permit | No |
| Planning permit | Agricultural area |
| Pre-emptive right | Yes |
| Originating Summons | - |
| Judicial decision | - |
Horse Immo Hoogstraat 20, 9340 Lede
- Telephone:+32.53.60.65.66
- EMAIL:info@horse-immo.be
- Website:www.horse-immo.be
Broker










































